top of page

Plan 2+ Modern

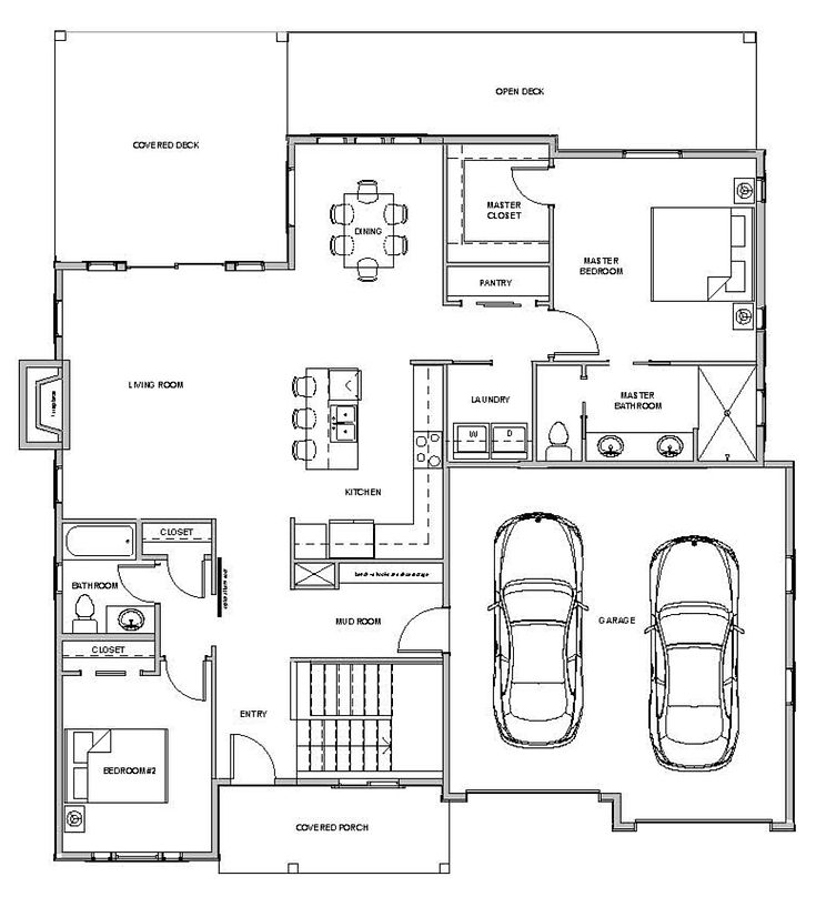
Features:

3,469 sq. ft. Living Area

Six Bedrooms

Four Bathrooms

​

• Full-width deck

• Main floor master bedroom

• Two-car garage

• Kitchen island

• Fireplace

• Walk-out basement

• Laundry room

• Family room

• Walk-in closets

Bridges_Winter 12_12_25_Page_20_edited.jpg
Bridges_Winter 12_12_25_Page_20_edited.jpg

© 2023 Bridges at Wolf Creek. All Rights Reserved.

bottom of page